
Initiation Au Beton Arme Determination De Ferraillage Complet D Une

Plan De Coffrage Ferraillage Dwg Autocad Batiment Cours Genie Civil Outils Livres Exercices Et Videos

Exemple Plan De Ferraillage D Un Mur De Soutenement Dwg Mur De Soutenement Plans De Maisonnette Calcul Mur De Soutenement

Dessin Plan Ferraillage 7 Dalot Youtube

Note De Calcul Pont Cadre Ou Dalot Cours Genie Civil Www Joga C La Cours Exercices Corriges Et Videos

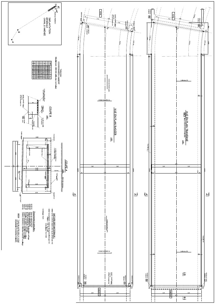
Plan Coffrage Et Ferraillage Dalot Dwg How To Plan Autocad Civil Engineering

Dalot 5 5 M X 5 4 M X 4 5 M Pont Cadre Eurocode 2 Systeme Bt Cpc Fascicule 61 Titre Ii Calcul Armature Plans Resume Des Quantitatifs French Edition Dalot Mosasaurus Structures 9781976915260 Amazon Com Books
Chemisage Exemple De Plan Dwg Cours Genie Civil Outils Livres Exercices Et Videos

Note De Calcul Complet Dalot 2 00 X 2 60 X 1 60

15 Idees De Dalots En 2021 Calcul Beton Genie Civil Cours Genie Civil

Note De Calcul D Un Dalot 3x4 00x4 00m Cours Genie Civil Outils Livres Exercices Et Videos

Ferraillage Radier D Un Dalot Raft Reinforcement Of A Scupper Youtube

Www Plan De Ferraillage De Dalot Com Pdf Notice Manuel D Utilisation
Coffrage Et Ferraillage Dalot 4 20x2 00

Note De Calcul Dun Dalot Double 4x2a Description De Louvrageepaisseur De La Dalle E1 0 3 Mepaisseu Calcul Calcul Beton Calcul Mur De Soutenement
Exemple De Note De Calcul D Ouvrage Dalot Cours Genie Civil Outils Livres Exercices Et Videos
Exemple De Plan De Ferraillage

Detail Ferraillage D Escalier Coffrage Escalier Beton Coffrage Escalier Escalier Beton

Www Plan De Ferraillage De Dalot Com Pdf Notice Manuel D Utilisation

Note De Calcul Canniveau Dallettes Calcul Genie Civil Assainissement

Principes De Dimensionnement De Dalot Fiche Pratique Cours Genie Civil Outils Livres Exercices Et Videos
Coffrage Et Ferraillage Dalot 4 20x2 00

Lire Et Comprendre Un Plan De Ferraillage Et Coffrage Cours Genie Civil Outils Livres Exercices Et Videos

Exemple De Dimensionnement D Un Dalot Rapport Stage Livre Btp
Exemple De Plan De Coffrage Et Ferraillage D Une Fosse Septique Cours Genie Civil Outils Livres Exercices Et Videos

Un Site Dedie A La Conception Plan De Maison Cuisine Salle De Bain Decoration Etude Structure Cours

Calcul De Structure Ferraillage Des Dalots Avec Cad90 Pont Cadre Youtube

Exemple De Plan Ferraillage Dalot En Pdf Cours Genie Civil Outils Livres Exercices Et Videos

Dessiner Plan De Ferraillage Et Coupe Dalot Rapidement Youtube

Plan Beton Arme Dalot 3d Bim Youtube

Plan Ferraillage Complet D Un Dalot Dim 3 00 X 2 00 M

Cad90 Programme De Calcul De Ferraillage Des Dalots Youtube

Exemple De Plan Ferraillage Et Coffrage Maison Batiment R 2 Dwg Coffrage Autocad Mur De Soutenement











